freiraum + landschaft | Seniorenwohnheim
787
single,single-portfolio_page,postid-787,ajax_updown_fade,page_not_loaded,,qode-child-theme-ver-1.0.0,qode-theme-ver-6.3,wpb-js-composer js-comp-ver-4.3.5,vc_responsive
 

Seniorenwohnheim

Guntramsdorf
Kategorie
Wohnen
Über dieses Projekt

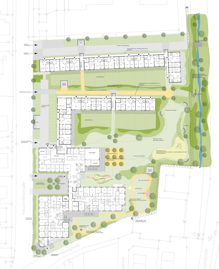
Für das Seniorenhaus Guntramsdorf wurde ein an den speziellen Bedürfnissen pflegebedürftiger BewohnerInnen orientiertes Freiraumkonzept entwickelt. Jede Wohnung sollte dabei über eine Anbindung an den Freiraum – durch Gartenanteile, Balkone oder Terrassen – verfügen.

Bereiche mit verschiedensten, alle Sinne anregenden Elementen (Wasser, Kräutern, Duftpflanzen) laden zum Verweilen und Flanieren im Garten ein, geschützte Abschnitte mit Rundwegführung ermöglichen auch dementen BewohnerInnen den Aufenthalt im Garten.

 

Einreichung

2005

 

In Zusammenarbeit

aap.architekten ZT-GmbH –

 

Platzierung

1. Rang, das eingereichte Projekt wurde zur Umsetzung empfohlen.

 

Fertigstellung

Frühjahr 2009

 

Eröffnung

26.10.2009